Foram encontradas 349 questões.
O Microsoft Excel é uma ferramenta repleta de
recursos, dentre eles as fórmulas, usadas para
diversas funções e por uma variedade de
pessoas e diferentes profissionais. Dada uma
determinada planilha, esta exibe nas células B1 e
B2, respectivamente, os valores 48 e 16. Nessas
células foram digitadas, na ordem, as fórmulas:
=SOMA(A1:A3)
=SE(B1>30;A3;A1)
Assinale, dentre as alternativas apresentadas, abaixo, a opção que mostra os valores que devem estar contidos nas células A1, A2 e A3, respectivamente:
=SOMA(A1:A3)
=SE(B1>30;A3;A1)
Assinale, dentre as alternativas apresentadas, abaixo, a opção que mostra os valores que devem estar contidos nas células A1, A2 e A3, respectivamente:
Provas
Questão presente nas seguintes provas
3132227
Ano: 2023
Disciplina: TI - Segurança da Informação
Banca: INQC
Orgão: Pref. Sant'ana Livramento-RS
Disciplina: TI - Segurança da Informação
Banca: INQC
Orgão: Pref. Sant'ana Livramento-RS
Provas:
Em um ambiente corporativo, um computador
apresenta comportamentos estranhos, como
lentidão extrema, erros frequentes e acesso a
arquivos e pastas que o usuário não autorizou. O
antivírus instalado não detectou nenhuma
ameaça. Suspeitando de um possível ataque, o
administrador decide investigar mais a fundo.
Após análise, ele descobre um programa
malicioso que se escondeu profundamente no
sistema operacional, explorando
vulnerabilidades e ocultando suas atividades
para evitar a detecção. Que termo técnico
descreve esse tipo de programa malicioso?
Provas
Questão presente nas seguintes provas
3132226
Ano: 2023
Disciplina: TI - Sistemas Operacionais
Banca: INQC
Orgão: Pref. Sant'ana Livramento-RS
Disciplina: TI - Sistemas Operacionais
Banca: INQC
Orgão: Pref. Sant'ana Livramento-RS
Provas:
Em relação aos sistemas de arquivos e suas
características de direitos de acesso, segurança e
integridade, assinale a alternativa que apresenta
uma afirmação INCORRETA.
Provas
Questão presente nas seguintes provas
3132225
Ano: 2023
Disciplina: TI - Sistemas Operacionais
Banca: INQC
Orgão: Pref. Sant'ana Livramento-RS
Disciplina: TI - Sistemas Operacionais
Banca: INQC
Orgão: Pref. Sant'ana Livramento-RS
Provas:
- LinuxManipulação de Arquivos e Pastas (Shell)ls
- LinuxShell no LinuxInterface de Linha de Comando (Linux)
No contexto de sistemas operacionais Linux,
qual comando é utilizado para listar o
conteúdo de um diretório de forma detalhada,
incluindo permissões, proprietário, grupo e
informações de tamanho e data de
modificação?
Provas
Questão presente nas seguintes provas
3132224
Ano: 2023
Disciplina: TI - Sistemas Operacionais
Banca: INQC
Orgão: Pref. Sant'ana Livramento-RS
Disciplina: TI - Sistemas Operacionais
Banca: INQC
Orgão: Pref. Sant'ana Livramento-RS
Provas:
- WindowsConfiguração e Manutenção do WindowsRestauração do Sistema (Windows)
- WindowsGerenciamento de Processos no WindowsGerenciador de Tarefas
- WindowsRegistro do Windows
- WindowsUsuários e Grupos no WindowsUAC: Controle de Conta de Usuário
Assinale V para as afirmações verdadeiras e F
para as afirmações falsas, no contexto de
instalação, configuração e administração de
sistemas operacionais Windows.
( ) O Registro do Windows é uma base de dados hierárquica que armazena configurações e opções do sistema operacional, bem como informações sobre aplicativos instalados.
( ) O Gerenciador de Tarefas do Windows permite monitorar o desempenho do sistema, finalizar aplicativos travados e gerenciar processos em execução.
( ) O Windows Defender é um software antivírus da Microsoft que não oferece proteção em tempo real contra ameaças de malware.
( ) A restauração do sistema no Windows permite reverter o sistema para um estado anterior, caso ocorram problemas após a instalação de drivers ou aplicativos.
( ) O recurso de Controle de Conta de Usuário (UAC) no Windows é projetado para melhorar a segurança, exigindo a confirmação do usuário para realizar alterações no sistema.
A sequência correta de preenchimento dos parênteses, de cima para baixo, é
( ) O Registro do Windows é uma base de dados hierárquica que armazena configurações e opções do sistema operacional, bem como informações sobre aplicativos instalados.
( ) O Gerenciador de Tarefas do Windows permite monitorar o desempenho do sistema, finalizar aplicativos travados e gerenciar processos em execução.
( ) O Windows Defender é um software antivírus da Microsoft que não oferece proteção em tempo real contra ameaças de malware.
( ) A restauração do sistema no Windows permite reverter o sistema para um estado anterior, caso ocorram problemas após a instalação de drivers ou aplicativos.
( ) O recurso de Controle de Conta de Usuário (UAC) no Windows é projetado para melhorar a segurança, exigindo a confirmação do usuário para realizar alterações no sistema.
A sequência correta de preenchimento dos parênteses, de cima para baixo, é
Provas
Questão presente nas seguintes provas
3132223
Ano: 2023
Disciplina: Contabilidade Geral
Banca: INQC
Orgão: Pref. Sant'ana Livramento-RS
Disciplina: Contabilidade Geral
Banca: INQC
Orgão: Pref. Sant'ana Livramento-RS
Provas:
O que deve ser demonstrado no Balanço
Patrimonial Público?
Provas
Questão presente nas seguintes provas
3132222
Ano: 2023
Disciplina: Engenharia Mecânica
Banca: INQC
Orgão: Pref. Sant'ana Livramento-RS
Disciplina: Engenharia Mecânica
Banca: INQC
Orgão: Pref. Sant'ana Livramento-RS
Provas:
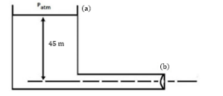
A figura abaixo representa um tanque de
grandes dimensões preenchido com fluido
ideal (a). Esse tanque é esvaziado por meio de
um tubo (b) cuja área da seção é 100 mm².
Considere aceleração da gravidade igual a 10m/s2 . A vazão, em m³/s, do líquido através do tubo é
Considere aceleração da gravidade igual a 10m/s2 . A vazão, em m³/s, do líquido através do tubo é
Provas
Questão presente nas seguintes provas
3132221
Ano: 2023
Disciplina: Engenharia Elétrica
Banca: INQC
Orgão: Pref. Sant'ana Livramento-RS
Disciplina: Engenharia Elétrica
Banca: INQC
Orgão: Pref. Sant'ana Livramento-RS
Provas:
A energia elétrica representa um dos principais
pilares para o progresso econômico de uma
nação e, consequentemente, para o
atendimento de inúmeras necessidades da
humanidade. Portanto, esse setor também tem
se preocupado com a geração, transmissão e
distribuição de energia elétrica de maneira a
preservar o meio ambiente. Sobre a relação
entre energia elétrica e a sustentabilidade
assinale a alternativa correta.
Provas
Questão presente nas seguintes provas
3132220
Ano: 2023
Disciplina: Engenharia Elétrica
Banca: INQC
Orgão: Pref. Sant'ana Livramento-RS
Disciplina: Engenharia Elétrica
Banca: INQC
Orgão: Pref. Sant'ana Livramento-RS
Provas:
Assinale a alternativa INCORRETA a respeito de
projetos e processo de orçamentação na
engenharia.
Provas
Questão presente nas seguintes provas
3132219
Ano: 2023
Disciplina: Engenharia Elétrica
Banca: INQC
Orgão: Pref. Sant'ana Livramento-RS
Disciplina: Engenharia Elétrica
Banca: INQC
Orgão: Pref. Sant'ana Livramento-RS
Provas:
Conforme especificações presentes na NBR
5410 assinale a opção correta a respeito do
dimensionamento dos condutores fase, neutro,
proteção e de aterramento.
Provas
Questão presente nas seguintes provas
Cadernos
Caderno Container