Foram encontradas 576 questões.
Ao definir a rede de distribuição predial de água fria de um edifício, abastecida por distribuidor público, verificou-se que esse sistema de abastecimento público possui pressão suficiente para atender a todos os pavimentos, mas sem garantia de continuidade. Podemos concluir que o sistema de abastecimento correto e mais econômico a ser adotado será:
Provas
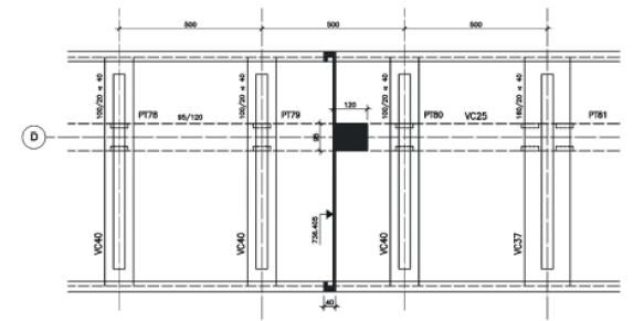
Analisando-se o segmento da planta do projeto executivo de estruturas de concreto armado abaixo, pode-se afirmar que a altura da viga VC25 é:

Provas
A planta do levantamento plani-altimétrico de um terreno, cujos lados foram medidos com régua métrica comum, apresenta área de 700 cm2. Sabendo-se que a área real do terreno é de 280.000 m2, a escala do desenho é
Provas
Na representação gráfica dos levantamentos topográficos, usualmente lança-se mão de convenções padronizadas. Assim sendo, o ponto demarcado no levantamento plani-altimétrico, abaixo, se trata de um

Provas
O Projeto de Arquitetura para espaços empresariais envolve os espaços de um ambiente preexistente e o seu desenvolvimento se dá pela especificação de materiais a serem aplicados, visando o resultado final a ser alcançado. Os principais elementos que constituem um projeto de arquitetura para o espaço empresarial de escritórios são:

É correto o que consta APENAS em
Provas
O processo de planejamento para espaços empresariais busca, muito além de definir a disposição de móveis no escritório, identificar a filosofia de trabalho de cada empresa e, através de metodologia sistemática de projeto, fornecer-lhe as condições adequadas para implantação de instalações administrativas. As preocupações mais importantes que constituem um projeto de Arquitetura para estes espaços são:
Provas
Segundo a NBR 9050, Norma Técnica Brasileira de "Acessibilidade a edificações, mobiliário, espaços e equipamento urbanos", quando mesas ou superfícies para refeições ou trabalho são previstas em espaços acessíveis, a quantidade acessível para P.C.R., "pessoa em cadeira de rodas", é de pelo menos
Provas
Ao elaborar o projeto de reforma para uma edificação de uso público, o arquiteto deparou-se com exigências sobre acessibilidade. Para tornar o edifício acessível, segundo a NBR 9050, Norma Técnica Brasileira de "Acessibilidade a edificações, mobiliário, espaços e equipamentos urbanos", o máximo desnível aceitável entre dois pisos para que não seja necessário tratamento especial é de
Provas
Analise a figura abaixo do ponto de vista de ergonomia, definindo a atividade correta em função da altura do plano de trabalho para adultos

Provas
Com respeito ao conforto acústico, podemos definir como parâmetro de projeto que o tempo limite de tolerância para ruídos contínuos ou intermitentes é, em hora de máxima exposição diária permissível para 100 dB (A), de
Provas
Caderno Container