A figura abaixo apresenta um corte transversal de uma edificação residencial.

Sobre esse corte, tomando por base o Código de Obras do Município de Saquarema, responda à questão.
O menor valor admissível para o pé-direito da edificação(a) vale:
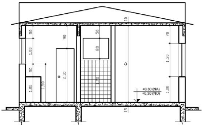
A figura abaixo apresenta um corte transversal de uma edificação residencial.

Sobre esse corte, tomando por base o Código de Obras do Município de Saquarema, responda à questão.
O menor valor admissível para o pé-direito da edificação(a) vale: