Magna Concursos
534538 Ano: 2018
Disciplina: Eletroeletrônica
Banca: FUNDEP
Orgão: INB
Provas:

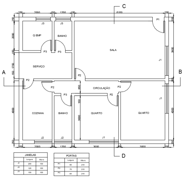
Analise esta planta de residência.

enunciado 534538-1

Após análise, é correto afirmar:

 

Provas

Questão presente nas seguintes provas