3951684
Ano: 2025
Disciplina: Eletroeletrônica
Banca: Instituto Seletiva
Orgão: Câm. Angra Reis-RJ
Disciplina: Eletroeletrônica
Banca: Instituto Seletiva
Orgão: Câm. Angra Reis-RJ
Provas:
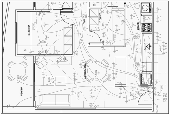
A interpretação correta de plantas e projetos elétricos é uma habilidade fundamental para o eletrotécnico. Analise o trecho do projeto
elétrico de baixa tensão apresentado abaixo, que detalha as áreas de cozinha, estar/refeições e Quarto 01:
Com base nas informações contidas no projeto acima, assinale a alternativa correta.
Com base nas informações contidas no projeto acima, assinale a alternativa correta.
Provas
Questão presente nas seguintes provas