Magna Concursos

Foram encontradas 30 questões.

3331482 Ano: 2022
Disciplina: Estatística
Banca: FUNDEP
Orgão: Câm. Ibirité-MG
Provas:

O gráfico a seguir mostra o faturamento das Empresas Filiais X e Y durante o 1º quadrimestre do ano de 2021.

Faturamento 1º quadrimestre de 2021

Empresas Filiais X e Y

Enunciado 3773832-1

Janeiro --------- Fevereiro ---------- Março ------------ Abril

Enunciado 3773832-2Empresa Filial X

Enunciado 3773832-3Empresa Filial Y

De acordo com o gráfico, é correto afirmar:

 

Provas

Questão presente nas seguintes provas
3331481 Ano: 2022
Disciplina: Matemática
Banca: FUNDEP
Orgão: Câm. Ibirité-MG
Provas:

Com o dinheiro que Carlos economizou de seu salário, ele vai comprar um kit de teclado / mouse para o seu computador e um smartphone que custa R$ 649,00. A soma do dobro do preço do kit teclado / mouse com o preço do celular é R$ 721,00.

Qual é o preço do kit teclado / mouse?

 

Provas

Questão presente nas seguintes provas
3331480 Ano: 2022
Disciplina: Matemática
Banca: FUNDEP
Orgão: Câm. Ibirité-MG
Provas:

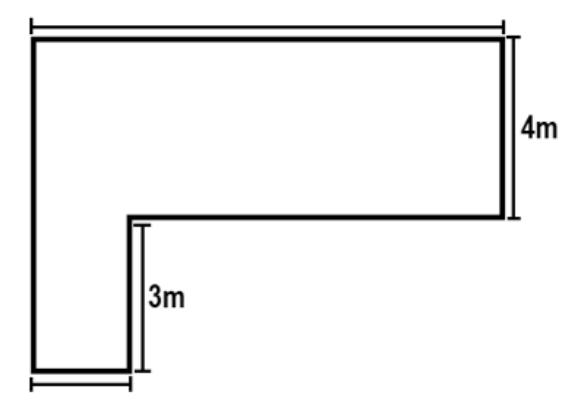
A figura a seguir mostra a planta de um jardim.

12 m

Enunciado 3773830-1

---------------------------- 2 m

Qual é o perímetro desse jardim?

 

Provas

Questão presente nas seguintes provas
3331479 Ano: 2022
Disciplina: Matemática
Banca: FUNDEP
Orgão: Câm. Ibirité-MG
Provas:

Daniele repartiu R$ 190,00 entre seus dois filhos. A filha recebeu R$ 30,00 a mais que o filho. Quanto recebeu o filho?

 

Provas

Questão presente nas seguintes provas
3331478 Ano: 2022
Disciplina: Matemática
Banca: FUNDEP
Orgão: Câm. Ibirité-MG
Provas:

Uma colecionadora, que possui em sua coleção 435 peças de porcelana, recebeu uma proposta para vender 20% de sua coleção.

Quantas peças serão vendidas?

 

Provas

Questão presente nas seguintes provas
3331477 Ano: 2022
Disciplina: Matemática
Banca: FUNDEP
Orgão: Câm. Ibirité-MG
Provas:

Observe a seguir o outdoor que uma empresa contratou para uma campanha publicitária.

9 m

Enunciado 3773827-1 3m

Qual é a área total desse outdoor?

 

Provas

Questão presente nas seguintes provas
3331476 Ano: 2022
Disciplina: Matemática
Banca: FUNDEP
Orgão: Câm. Ibirité-MG
Provas:

Helena saiu de casa às 9 horas para ir à reunião de pais na escola de seu filho. Caminhou por 15 minutos até chegar à escola. A reunião durou 1 hora e 20 minutos. Após a reunião, caminhou novamente mais 15 minutos para retornar para casa.

Que horas Helena chegou em casa?

 

Provas

Questão presente nas seguintes provas
3331475 Ano: 2022
Disciplina: Matemática
Banca: FUNDEP
Orgão: Câm. Ibirité-MG
Provas:

Juliana recebeu R$ 620,00 pela realização de um projeto de decoração. Desse valor, pagou 15% em impostos.

Quanto Juliana pagou, em reais, pelo valor desse imposto?

 

Provas

Questão presente nas seguintes provas
3331474 Ano: 2022
Disciplina: Matemática
Banca: FUNDEP
Orgão: Câm. Ibirité-MG
Provas:

O instituto de meteorologia da cidade de Belo Horizonte constatou que, durante o início de uma tarde de inverno, os termômetros marcavam 23 ºC. Às 14 horas, a temperatura havia subido 5 ºC, e, na parte da noite, caiu 7 ºC.

Qual era a temperatura na parte da noite?

 

Provas

Questão presente nas seguintes provas
3331473 Ano: 2022
Disciplina: Matemática
Banca: FUNDEP
Orgão: Câm. Ibirité-MG
Provas:

De um tanque de água totalmente cheio, foram retirados 1.750 litros. O volume que restou corresponde a 65% da capacidade total do tanque.

Qual é a capacidade total em litros desse tanque?

 

Provas

Questão presente nas seguintes provas