Foram encontradas 200 questões.
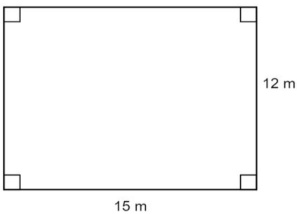
Carlos está analisando um terreno que deseja comprar. O terreno tem forma retangular, cujas dimensões são apresentadas
a seguir.
A área do terreno que Carlos deseja comprar é de
A área do terreno que Carlos deseja comprar é de
Provas
Questão presente nas seguintes provas
Camila está reformando sua casa e construirá uma
piscina. A imagem a seguir apresenta o projeto da
piscina, que tem forma de bloco retangular, com as
seguintes medidas:
Quando pronta, a capacidade da piscina de Camila será igual a
Quando pronta, a capacidade da piscina de Camila será igual a
Provas
Questão presente nas seguintes provas
O voluntariado foi praticado por 7,2 milhões de pessoas
no país em 2018, segundo o suplemento Outras Formas
de Trabalho, da Pesquisa Nacional de Amostra por
Domicílios Contínua, divulgado pelo IBGE. Segundo a
pesquisa, o trabalho voluntário no país era realizado de
forma consistente. A duração média das atividades era
de 6,5 horas por semana e a maior parte dos voluntários,
48,4%, se dedicavam quatro ou mais vezes por mês.
NETO, João. País tem 7,2 milhões de pessoas que fazem trabalho voluntário. Agência de Notícias IBGE. Disponível em: https://agenciadenoticias.ibge.gov.br/agencia- noticias/2012-agencia-de-noticias/noticias/24268-pais-tem-7- 2-milhoes-de-pessoas-que-fazem-trabalho-voluntario. Acesso em: 23 set. 2023 (adaptado).
O gráfico a seguir apresenta a frequência dos praticantes no trabalho voluntário, segundo a pesquisa.
De acordo com os dados do gráfico, o percentual de pessoas que realizam trabalho voluntário de uma a três vezes por mês é igual a
NETO, João. País tem 7,2 milhões de pessoas que fazem trabalho voluntário. Agência de Notícias IBGE. Disponível em: https://agenciadenoticias.ibge.gov.br/agencia- noticias/2012-agencia-de-noticias/noticias/24268-pais-tem-7- 2-milhoes-de-pessoas-que-fazem-trabalho-voluntario. Acesso em: 23 set. 2023 (adaptado).
O gráfico a seguir apresenta a frequência dos praticantes no trabalho voluntário, segundo a pesquisa.
De acordo com os dados do gráfico, o percentual de pessoas que realizam trabalho voluntário de uma a três vezes por mês é igual a
Provas
Questão presente nas seguintes provas
Um mapa do Brasil foi construído de modo que 1 cm no
mapa representa uma distância real de 250 km. Sabe-se
que a distância linear entre as capitais São Paulo e Rio
de Janeiro é de, aproximadamente, 350 km.
No mapa, a distância entre essas duas capitais pode ser representada por um segmento de medida de
No mapa, a distância entre essas duas capitais pode ser representada por um segmento de medida de
Provas
Questão presente nas seguintes provas
Se você está pensando em comprar um novo smartphone,
já deve ter notado em suas pesquisas que vivemos um
momento de alta nos preços. Segundo dados da IDC,
só no primeiro trimestre de 2020 o preço oficial dos
aparelhos no Brasil subiu cerca de 15% [...].
Antes desse aumento, um smartphone no Brasil custava cerca de R$ 1 280,00.
VANI, Samir. O “novo normal” no preço dos smartphones. Canal Tech. Disponível em: https://canaltech.com.br/colunas/ o-novo-normal-no-preco-dos-smartphones/. Acesso em: 23 set. 2023.
Com a alta, o valor médio de um aparelho no Brasil, no primeiro trimestre de 2020, passou a ser de, aproximadamente,
Antes desse aumento, um smartphone no Brasil custava cerca de R$ 1 280,00.
VANI, Samir. O “novo normal” no preço dos smartphones. Canal Tech. Disponível em: https://canaltech.com.br/colunas/ o-novo-normal-no-preco-dos-smartphones/. Acesso em: 23 set. 2023.
Com a alta, o valor médio de um aparelho no Brasil, no primeiro trimestre de 2020, passou a ser de, aproximadamente,
Provas
Questão presente nas seguintes provas
Apesar dos índices de obesidade terem dobrado nas
últimas duas décadas, estamos ganhando cada vez
mais consciência alimentar. [...] E, no centro dessa
onda saudável, está a proteína – os supermercados
não deixam mentir. As prateleiras estão repletas de
shakes, barrinhas e versões de produtos básicos, como
cereais e sopas, enriquecidos com o nutriente. [...]
Mas alguns especialistas argumentam que alimentos
ricos em proteína (e inflacionados) são um desperdício
de dinheiro. Para adultos que não são muito ativos,
o recomendado é ingerir diariamente cerca de 0,75 g de
proteína por quilo de peso corporal.
BROWN, Jessica. Qual é de fato a quantidade de proteína de que nosso corpo precisa?. BBC News Brasil. Disponível em: https://www.bbc.com/portuguese/vert-fut-44378545. Acesso em: 23 set. 2023.
De acordo com a recomendação apresentada, um adulto não muito ativo e pesando 60 kg deve ingerir diariamente cerca de
BROWN, Jessica. Qual é de fato a quantidade de proteína de que nosso corpo precisa?. BBC News Brasil. Disponível em: https://www.bbc.com/portuguese/vert-fut-44378545. Acesso em: 23 set. 2023.
De acordo com a recomendação apresentada, um adulto não muito ativo e pesando 60 kg deve ingerir diariamente cerca de
Provas
Questão presente nas seguintes provas
Semana passada, Paulo fez uma viagem de Cordisburgo
a Belo Horizonte em, aproximadamente, 100 minutos,
percorrendo esse trajeto com uma velocidade média
de 70 km/h. Hoje ele precisou fazer o mesmo percurso,
mas, por condições adversas de trânsito, a velocidade
média do veículo de Paulo durante a viagem foi
de 50 km/h.
O tempo que Paulo levou para realizar sua viagem hoje foi de, aproximadamente,
O tempo que Paulo levou para realizar sua viagem hoje foi de, aproximadamente,
Provas
Questão presente nas seguintes provas
Diariamente, uma pessoa se exercita por meio de
diferentes atividades físicas. Utilizando um relógio
esportivo, ela foi capaz de registrar o tempo empenhado
em suas atividades durante cinco dias da última semana.
A tabela a seguir apresenta essas informações.

No período apresentado, o tempo médio que essa pessoa gastou em atividades físicas foi igual a
A tabela a seguir apresenta essas informações.

No período apresentado, o tempo médio que essa pessoa gastou em atividades físicas foi igual a
Provas
Questão presente nas seguintes provas
Um dos pedidos mais populares de uma sorveteira é o
açaí no pote. Para acompanhar o açaí, os clientes devem
escolher uma opção de fruta, uma opção de cobertura e
uma opção de confeito. As opções de fruta fornecidas
são banana e morango, já as opções de cobertura são
leite condensado e creme de avelã, enquanto as opções
de confeito são chocolate granulado e paçoca.
O número de pedidos distintos que um cliente pode fazer escolhendo uma fruta, uma opção de cobertura e um confeito é igual a
O número de pedidos distintos que um cliente pode fazer escolhendo uma fruta, uma opção de cobertura e um confeito é igual a
Provas
Questão presente nas seguintes provas
Caio comprou um álbum de figurinhas e agora precisa
completá-lo. O álbum tem 22 páginas e, em cada página,
devem ser coladas 15 figurinhas. Sabe-se que cada
figurinha custa R$ 2,00 e que elas podem ser compradas
individualmente.
Para completar o álbum, Caio precisará gastar, no mínimo,
Para completar o álbum, Caio precisará gastar, no mínimo,
Provas
Questão presente nas seguintes provas
Cadernos
Caderno Container