Magna Concursos

Foram encontradas 40 questões.

3034472 Ano: 2023
Disciplina: Arquitetura
Banca: FUNDATEC
Orgão: Pref. Sapucaia Sul-RS
Provas:
Levando em consideração a NBR 16636-3:2020, é INCORRETO afirmar que:
 

Provas

Questão presente nas seguintes provas
3034471 Ano: 2023
Disciplina: Arquitetura
Banca: FUNDATEC
Orgão: Pref. Sapucaia Sul-RS
Provas:

Sobre o projeto e execução de fundações, analise as assertivas abaixo:

I. Cota de arrasamento é o nível em que deve ser deixado o topo da estaca ou tubulão, de modo a possibilitar a integração estrutural entre o elemento de fundação e o bloco de coroamento.

II. Estaca Franki é a estaca executada por perfuração do solo por trado mecânico, sem emprego de revestimento ou fluido estabilizante.

III. Sapata associada é o elemento de fundação rasa, de concreto armado, dimensionado de modo que as tensões de tração nele resultantes sejam resistidas pelo emprego de armadura especialmente disposta para esse fim.

Quais estão corretas?

 

Provas

Questão presente nas seguintes provas
3034470 Ano: 2023
Disciplina: Arquitetura
Banca: FUNDATEC
Orgão: Pref. Sapucaia Sul-RS
Provas:
Sobre as saídas de emergência em edifícios, é correto afirmar que:
 

Provas

Questão presente nas seguintes provas
3034469 Ano: 2023
Disciplina: Arquitetura
Banca: FUNDATEC
Orgão: Pref. Sapucaia Sul-RS
Provas:
De acordo com a NBR 15575-1:2021, é INCORRETO afirmar que:
 

Provas

Questão presente nas seguintes provas
3034468 Ano: 2023
Disciplina: Arquitetura
Banca: FUNDATEC
Orgão: Pref. Sapucaia Sul-RS
Provas:
Levando em consideração a Lei nº 10.527/2021, a respeito do plano diretor, analise as assertivas abaixo:
I. O plano diretor deverá englobar o território do Município como um todo, e a lei que o instituir deverá ser revista, pelo menos, a cada dez anos.
II. O plano diretor é obrigatório para cidades incluídas no cadastro nacional de Municípios com áreas suscetíveis à ocorrência de deslizamentos de grande impacto, inundações bruscas ou processos geológicos ou hidrológicos correlatos. III. No processo de elaboração do plano diretor e na fiscalização de sua implementação, somente o Poder Executivo garantirá o acesso de qualquer interessado aos documentos e informações produzidos.
Quais estão corretas?
 

Provas

Questão presente nas seguintes provas
3034467 Ano: 2023
Disciplina: Arquitetura
Banca: FUNDATEC
Orgão: Pref. Sapucaia Sul-RS
Provas:
Sobre a execução de levantamento topográfico, é INCORRETO afirmar que:
 

Provas

Questão presente nas seguintes provas
3034466 Ano: 2023
Disciplina: Arquitetura
Banca: FUNDATEC
Orgão: Pref. Sapucaia Sul-RS
Provas:
De acordo com a NBR 8800:2008, a que se refere letra romana minúscula fck?
 

Provas

Questão presente nas seguintes provas
3034465 Ano: 2023
Disciplina: Arquitetura
Banca: FUNDATEC
Orgão: Pref. Sapucaia Sul-RS
Provas:
Em perfis laminados de aço para uso estrutural, as letras A, B e C, da imagem abaixo, referem-se, respectivamente, a:

Enunciado 3394592-1
 

Provas

Questão presente nas seguintes provas
3034464 Ano: 2023
Disciplina: Arquitetura
Banca: FUNDATEC
Orgão: Pref. Sapucaia Sul-RS
Provas:
De acordo com a NBR 15980:2020, analise as assertivas abaixo:
I. Perfil L é um perfil cuja seção transversal tem formato de L, com abas iguais, formando um ângulo de 90º entre as abas. II. Perfis I são perfis duplamente simétricos, com faces de aba paralelas, que têm na superfície interna das abas uma inclinação de aproximadamente 18%. III. Perfis T são perfis monossimétricos, que têm a alma e a mesa com as mesmas dimensões.
Quais estão corretas?
 

Provas

Questão presente nas seguintes provas
3034463 Ano: 2023
Disciplina: Arquitetura
Banca: FUNDATEC
Orgão: Pref. Sapucaia Sul-RS
Provas:
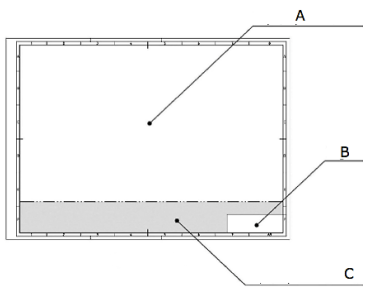
De acordo com a Norma que trata dos requisitos para apresentação em folhas de desenho, a letra C, na imagem abaixo, refere-se, respectivamente, a:
Enunciado 3394590-1
 

Provas

Questão presente nas seguintes provas