Foram encontradas 640 questões.
Para construir 14 metros de um muro, são necessários três pedreiros. Para construir, nas mesmas condições de altura e tempo, 42 metros do mesmo muro, quantos pedreiros são necessários?
Provas
Determine o valor de X no seguimento abaixo, sabendo que as retas “a” e “b” são paralelas.

Provas
Disciplina: Matemática Financeira
Banca: FUNDATEC
Orgão: Pref. Tramandaí-RS
Aplicando R$ 500,00 em determinado banco, em um mês, o rendimento é de R$ 2,50 de juros. Se for aplicado R$ 3.000,00 pelas mesmas condições que a outra aplicação, durante um mês, quanto renderia de juros?
Provas
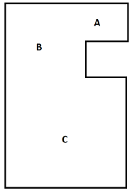
A planta-baixa de uma casa foi feita a partir da união de 3 quadrados distintos, conforme figura abaixo:

As áreas, em m², respectivamente dos quadrados A, B, e C são 25, 49 e 121. Qual a medida, em metros, do perímetro da casa?
Provas
Disciplina: Segurança Privada e Transportes
Banca: FUNDATEC
Orgão: Pref. Tramandaí-RS
Ao operar a máquina para fazer uma valeta, o operador observa que a máquina, mesmo estando com o giro alto do motor (RPM – rotações por minuto), não consegue fazer a escavação de forma rápida, parecendo que não tem força. Uma das causas prováveis é:
Provas
Considerando o conceito de indicadores econômicos financeiros básicos, analise as seguintes assertivas:
I. O indicador de liquidez corrente mede a relação existente entre o ativo circulante e o passivo circulante, ou seja, de cada R$1,00 aplicado em haveres e direitos circulantes (disponível, valores a receber e estoques, fundamentalmente), quanto a empresa deve também a curto prazo.
II. Os indicadores de atividade visam a mensuração das diversas durações de um “ciclo operacional”, o qual envolve todas as fases operacionais típicas de uma empresa, que vão desde a aquisição de insumos básicos ou mercadorias até o recebimento das vendas realizadas.
III. Os indicadores de rentabilidade são utilizados, basicamente, para aferir a composição das fontes passivas de recursos de uma empresa. Ilustram quanto de recursos próprios (patrimônio líquido) e de recursos de terceiros são utilizados para financiar os ativos totais da empresa.
Quais estão corretas?
Provas
Assinale a alternativa que apresenta as coordenadas do vértice do gráfico da seguinte função f(x) = x² +5x – 6.
Provas
Há muitos desafios a serem enfrentados na Educação brasileira. Em 2019, o Brasil estava posicionado entre os 10 países mais desiguais do mundo, possuindo quase 12 milhões de analfabetos e mais da metade dos adultos, entre 25 e 64 anos, que não concluíram o Ensino Médio. São quase dois milhões de crianças e jovens de 4 a 17 anos fora da escola e 6,8 milhões de crianças de 0 a 3 anos sem vaga em creche. Os dados mostram que há sérios problemas, entre os quais NÃO está:
Provas
Amanda nasceu em 1982 e seu irmão, Camilo, é 13 anos mais velho. Sabendo que Camilo já fez aniversário em 2020, quantos anos ele tem?
Provas
Relativamente à terminologia do posicionamento e suas descrições, relacione a Coluna 1 à Coluna 2.
Coluna 1
1. Posição supina.
2. Posição Fowler.
3. Incidência anteroposterior.
4. Incidência mediolateral.
5. Receptor de imagem.
Coluna 2
( ) Posição de decúbito na qual a cabeça fica mais alta que os pés.
( ) Incidência do raio central no sentido anterior para o posterior do paciente.
( ) Dispositivo que captura a imagem radiográfica.
( ) Incidência lateral descrita segundo a trajetória do raio central.
( ) Paciente deitado de costas com a face para cima.
A ordem correta de preenchimento dos parênteses, de cima para baixo, é:
Provas
Caderno Container