Foram encontradas 60 questões.
Provas
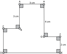
O perímetro do polígono ABCDEFGH é igual a 26 cm, e os lados BC e FG desse polígono são congruentes, conforme mostra a figura.

A área, em cm2 , do polígono ABCDEFGH é
Provas
Provas
Provas
Leia um trecho do romance “A Madona de Cedro”, de Antonio Callado, para responder à questão.
No primeiro dia no Rio de Janeiro, Delfino Montiel quase se afogou. Ele tinha aprendido a nadar menino ainda no rio das Velhas, na fazenda de seu tio Dilermando. Mas a corrente dos rios é honesta e determinada, vai reta e sempre se disciplina pelas margens. O mar... Ora, quem vai entender o mar? Delfino largou-se para o mar no mesmo dia em que chegara ao Rio. Atravessou a areia e foi entrando no mar numa espécie de exaltação. Queria chorar com aquela frescura de água azul, queria abraçar e beijar o mar. A primeira onda que lhe veio ao encontro, Delfino a recebeu de braços abertos. Ela o derrubou numa cascata de areia e espuma. Ele bebeu água, muita, mas estava embriagado de mar.
Só quando já se achava sentado na areia, arquejante, entre uma súcia de curiosos, é que Delfino compreendeu que quase tinha morrido afogado. Um dos que o havia salvo era um rapagão simpático que lhe perguntou:
– Você donde é que veio, patrício, de Cabrobó1 ou Caixa Prego2?
– De Congonhas do Campo, respondeu Delfino ingenuamente.
Muita gente riu em torno dele.
– Pois, se você ainda quer rever Congonhas, trate o mar com mais desconfiança.
Enquanto o rapaz se afastava, Delfino notou principalmente o riso de uma menina de cabelos cor de mel. Ele a notou porque a menina não queria exatamente rir, com pena dele que estava, mas sua companheira ria tão à vontade que ela não podia deixar de acompanhá-la.
Com os olhos fitos nela, Delfino a foi acompanhando com a vista enquanto a menina entrava no mar. Viu logo que era uma amiga íntima do mar. Viu-a furar uma primeira onda, ligeira e exata como uma agulha mergulhando na dobra azul de um pano. Quando ela se levantou do mergulho, o cabelo cor de mel estava preto e grudado ao pescoço, preto-esverdeado, como se ela tivesse voltado mais marinha do fundo do mar.
(Record/Altaya. Adaptado)
1Cabrobó é uma cidade pernambucana no sertão do São Francisco.
2Caixa Prego significa lugar muito distante, longínquo.
Provas
- MorfologiaVerbosConjugaçãoFlexão Verbal de Modo
- MorfologiaVerbosConjugaçãoFlexão Verbal de Tempo
- Interpretação de Textos
Leia um trecho do romance “A Madona de Cedro”, de Antonio Callado, para responder à questão.
No primeiro dia no Rio de Janeiro, Delfino Montiel quase se afogou. Ele tinha aprendido a nadar menino ainda no rio das Velhas, na fazenda de seu tio Dilermando. Mas a corrente dos rios é honesta e determinada, vai reta e sempre se disciplina pelas margens. O mar... Ora, quem vai entender o mar? Delfino largou-se para o mar no mesmo dia em que chegara ao Rio. Atravessou a areia e foi entrando no mar numa espécie de exaltação. Queria chorar com aquela frescura de água azul, queria abraçar e beijar o mar. A primeira onda que lhe veio ao encontro, Delfino a recebeu de braços abertos. Ela o derrubou numa cascata de areia e espuma. Ele bebeu água, muita, mas estava embriagado de mar.
Só quando já se achava sentado na areia, arquejante, entre uma súcia de curiosos, é que Delfino compreendeu que quase tinha morrido afogado. Um dos que o havia salvo era um rapagão simpático que lhe perguntou:
– Você donde é que veio, patrício, de Cabrobó1 ou Caixa Prego2?
– De Congonhas do Campo, respondeu Delfino ingenuamente.
Muita gente riu em torno dele.
– Pois, se você ainda quer rever Congonhas, trate o mar com mais desconfiança.
Enquanto o rapaz se afastava, Delfino notou principalmente o riso de uma menina de cabelos cor de mel. Ele a notou porque a menina não queria exatamente rir, com pena dele que estava, mas sua companheira ria tão à vontade que ela não podia deixar de acompanhá-la.
Com os olhos fitos nela, Delfino a foi acompanhando com a vista enquanto a menina entrava no mar. Viu logo que era uma amiga íntima do mar. Viu-a furar uma primeira onda, ligeira e exata como uma agulha mergulhando na dobra azul de um pano. Quando ela se levantou do mergulho, o cabelo cor de mel estava preto e grudado ao pescoço, preto-esverdeado, como se ela tivesse voltado mais marinha do fundo do mar.
(Record/Altaya. Adaptado)
1Cabrobó é uma cidade pernambucana no sertão do São Francisco.
2Caixa Prego significa lugar muito distante, longínquo.
Provas
Leia um trecho do romance “A Madona de Cedro”, de Antonio Callado, para responder à questão.
No primeiro dia no Rio de Janeiro, Delfino Montiel quase se afogou. Ele tinha aprendido a nadar menino ainda no rio das Velhas, na fazenda de seu tio Dilermando. Mas a corrente dos rios é honesta e determinada, vai reta e sempre se disciplina pelas margens. O mar... Ora, quem vai entender o mar? Delfino largou-se para o mar no mesmo dia em que chegara ao Rio. Atravessou a areia e foi entrando no mar numa espécie de exaltação. Queria chorar com aquela frescura de água azul, queria abraçar e beijar o mar. A primeira onda que lhe veio ao encontro, Delfino a recebeu de braços abertos. Ela o derrubou numa cascata de areia e espuma. Ele bebeu água, muita, mas estava embriagado de mar.
Só quando já se achava sentado na areia, arquejante, entre uma súcia de curiosos, é que Delfino compreendeu que quase tinha morrido afogado. Um dos que o havia salvo era um rapagão simpático que lhe perguntou:
– Você donde é que veio, patrício, de Cabrobó1 ou Caixa Prego2?
– De Congonhas do Campo, respondeu Delfino ingenuamente.
Muita gente riu em torno dele.
– Pois, se você ainda quer rever Congonhas, trate o mar com mais desconfiança.
Enquanto o rapaz se afastava, Delfino notou principalmente o riso de uma menina de cabelos cor de mel. Ele a notou porque a menina não queria exatamente rir, com pena dele que estava, mas sua companheira ria tão à vontade que ela não podia deixar de acompanhá-la.
Com os olhos fitos nela, Delfino a foi acompanhando com a vista enquanto a menina entrava no mar. Viu logo que era uma amiga íntima do mar. Viu-a furar uma primeira onda, ligeira e exata como uma agulha mergulhando na dobra azul de um pano. Quando ela se levantou do mergulho, o cabelo cor de mel estava preto e grudado ao pescoço, preto-esverdeado, como se ela tivesse voltado mais marinha do fundo do mar.
(Record/Altaya. Adaptado)
1Cabrobó é uma cidade pernambucana no sertão do São Francisco.
2Caixa Prego significa lugar muito distante, longínquo.
Provas
- MorfologiaPronomesPronomes PessoaisPronomes Pessoais Oblíquos
- Interpretação de TextosCoesão e Coerência
Leia o texto para responder à questão.
Quando o efêmero dura
Uma das mais fabulosas tecnologias humanas é a escrita. Ela nos permitiu ampliar a memória para horizontes inimagináveis. Não fosse por ela, jamais teríamos atingido os níveis de acúmulo, transmissão e integração de conhecimento que logramos obter e, provavelmente, não diferiríamos muito de nossos ancestrais do Neolítico.
Uma tecnologia tão poderosa não poderia passar sem deixar marcas. De início, poucos dominavam as letras, de modo que saber ler e escrever se tornou uma distinção de classe social. À medida que surgiram tecnologias mais eficientes de reprodução (prensa) e o ensino público se popularizou, o alfabetismo se tornou quase universal.
No nível comportamental, havia uma divisão bastante clara entre a comunicação formal, calculada, destinada a durar (escrita), e aquela mais íntima, vaga (oral), que, justamente por não deixar traços, podia operar como uma sonda da sociabilidade, testando relacionamentos, fofocando, às vezes até zombando e insultando. O ex-presidente Temer apropriadamente matou a charada ao proclamar: “verba volant, scripta manent” (as palavras faladas voam, as palavras escritas permanecem).
O problema é que as tecnologias não pararam de evoluir, dando lugar a computadores, celulares, aplicativos de mensagem, redes sociais etc. As pessoas vêm cada vez mais usando a escrita para comunicar-se no registro informal, que contava com o caráter efêmero da fala. Pior, a reprodutibilidade e transmissão de diálogos privados se tornaram potencialmente infinitas, sem falar do hackeamento.
O resultado é uma explosão de curtos-circuitos sociais, nos quais mensagens concebidas para circular entre poucos ganham ampla difusão. Às vezes a divulgação é de interesse público, mas, em outros casos, ela só azeda amizades, compromete namoros ou intoxica o ambiente de trabalho. Vejo com certa preocupação a redução dos espaços de experimentação social, onde é lícito falar bobagem.
(Hélio Schwartsman. https://www1.folha.uol.com.br/colunas/helioschwartsman/2019 /11/quando-o-efemero-dura.shtml Adaptado.)
Provas
Considere a tira e o texto para responder à questão.

(Bob Thaves. Frank & Ernest. O Estado de S. Paulo, 21.09.2019.)
Em meio ___ cerimônia, os noivos passaram ____ negociar a divisão de bens, o que transformou o evento religioso em evento forense, causando surpresa ____ pessoas presentes, entre elas, os amigos Frank e Ernest.
Para que o texto esteja de acordo com a norma-padrão, as lacunas devem ser preenchidas, respectivamente, por
Provas
Leia um trecho do romance “A Madona de Cedro”, de Antonio Callado, para responder à questão.
No primeiro dia no Rio de Janeiro, Delfino Montiel quase se afogou. Ele tinha aprendido a nadar menino ainda no rio das Velhas, na fazenda de seu tio Dilermando. Mas a corrente dos rios é honesta e determinada, vai reta e sempre se disciplina pelas margens. O mar... Ora, quem vai entender o mar? Delfino largou-se para o mar no mesmo dia em que chegara ao Rio. Atravessou a areia e foi entrando no mar numa espécie de exaltação. Queria chorar com aquela frescura de água azul, queria abraçar e beijar o mar. A primeira onda que lhe veio ao encontro, Delfino a recebeu de braços abertos. Ela o derrubou numa cascata de areia e espuma. Ele bebeu água, muita, mas estava embriagado de mar.
Só quando já se achava sentado na areia, arquejante, entre uma súcia de curiosos, é que Delfino compreendeu que quase tinha morrido afogado. Um dos que o havia salvo era um rapagão simpático que lhe perguntou:
– Você donde é que veio, patrício, de Cabrobó1 ou Caixa Prego2?
– De Congonhas do Campo, respondeu Delfino ingenuamente.
Muita gente riu em torno dele.
– Pois, se você ainda quer rever Congonhas, trate o mar com mais desconfiança.
Enquanto o rapaz se afastava, Delfino notou principalmente o riso de uma menina de cabelos cor de mel. Ele a notou porque a menina não queria exatamente rir, com pena dele que estava, mas sua companheira ria tão à vontade que ela não podia deixar de acompanhá-la.
Com os olhos fitos nela, Delfino a foi acompanhando com a vista enquanto a menina entrava no mar. Viu logo que era uma amiga íntima do mar. Viu-a furar uma primeira onda, ligeira e exata como uma agulha mergulhando na dobra azul de um pano. Quando ela se levantou do mergulho, o cabelo cor de mel estava preto e grudado ao pescoço, preto-esverdeado, como se ela tivesse voltado mais marinha do fundo do mar.
(Record/Altaya. Adaptado)
1Cabrobó é uma cidade pernambucana no sertão do São Francisco.
2Caixa Prego significa lugar muito distante, longínquo.
Leia o trecho reescrito do texto, observando que a pontuação foi alterada e as frases foram numeradas.
1. Um dos rapazes que, o havia salvo, era um rapagão simpático que lhe perguntou:
2. Você donde é que veio, patrício, de Cabrobó ou Caixa Prego.
3. De Congonhas do Campo respondeu: Delfino ingenuamente.
4. Muita gente riu em (torno) dele.
5. Pois, se você ainda quer rever Congonhas, trate o mar com mais desconfiança!
A frase que contém a alteração da pontuação em conformidade com a norma-padrão, sem comprometer o sentido do texto, é a de número
Provas
Caderno Container