Foram encontradas 526 questões.

Provas
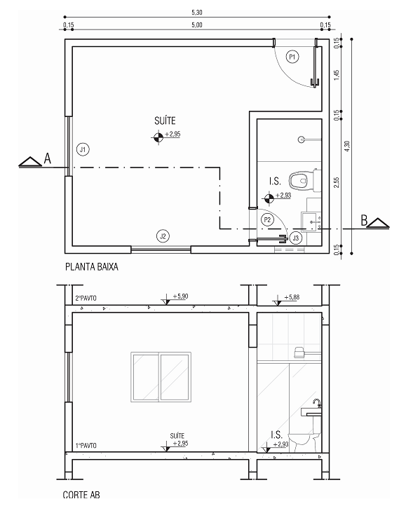
Considere a seguinte representação de marcação de detalhe de um projeto executivo:

De acordo com a NBR 6492, as identificações I e II são, respectivamente:
Provas
A imagem acima representa um sistema típico de abastecimento de água. Estão nomeados os componentes edificados
e a rede de distribuição. A esse respeito, qual informação NÃO corresponde ao processo do sistema representado na
imagem?Provas
De acordo com a NBR 6492, as identificações I e II são, respectivamente:Provas
Provas
Numere a COLUNA II de acordo com a COLUNA I relacionando os comandos do software Autocad da Autodesk com as suas definições.
COLUNA I
1. LIST
2. OFFSET
3. MATCHPROP
4. ORTHO
COLUNA II
( ) Aplica as propriedades de um objeto selecionado para outros objetos.
( ) Cria círculos concêntricos, linhas paralelas, curvas e paralelas.
( ) Restringe o movimento do cursor na direção horizontal ou vertical.
( ) Exibe dados de propriedade de objetos selecionados.
Assinale a alternativa que apresenta a sequência CORRETA de números.
Provas
Provas
- Tecnologia das ConstruçõesSistemas e Elementos ConstrutivosSistemas EstruturaisPrincípios e Fundamentos
- Tecnologia das ConstruçõesSistemas e Elementos ConstrutivosSistemas EstruturaisMorfologia e Funcionamento das Estruturas
Provas
Provas
Numere a COLUNA II de acordo com a COLUNA I relacionando as fases do projeto com as suas definições.
COLUNA I
1. Estudo Preliminar
2. Anteprojeto
3. Projeto Executivo
4. Projeto como construído
COLUNA II
( ) Definição do partido arquitetônico e dos elementos construtivos, considerando os projetos complementares (estrutura, instalações, etc.). Nesta etapa, o projeto deve receber aprovação final do cliente e dos órgãos oficiais envolvidos e possibilitar a contratação da obra.
( ) Apresenta, de forma clara e organizada, todas as informações necessárias à execução da obra e todos os serviços inerentes.
( ) Constitui-se na revisão final, pós-obra, de todos os documentos do projeto executivo.
( ) Estudo da viabilidade de um programa e do partido arquitetônico a ser adotado para sua apreciação e aprovação pelo cliente.
Assinale a alternativa que apresenta a sequência CORRETA de números.
Provas
Caderno Container