Foram encontradas 1.356 questões.
Em um ramal de esgoto de um banheiro residencial foram instalados os seguintes aparelhos sanitários, com suas respectivas Unidades Hunter de Contribuição – UHC.

Para o projeto das instalações de esgoto, o Diâmetro Nominal − DN mínimo desse ramal de esgoto, em mm, é
Provas
Considere o piso de uma estrutura mista, constituída de vigas de aço MR250 em perfis soldados VS 400 × 58, ligadas por pinos a uma laje maciça de concreto armado com espessura de 10 cm como ilustrado na figura abaixo.

Se a largura efetiva da laje for de 120 cm, o módulo de elasticidade do aço for 200 000 MPa e o módulo de elasticidade secante médio do concreto for 25 000 MPa, para o cálculo das tensões e deformações devidas às cargas de curta duração, a área de concreto a ser considerada nas propriedades geométricas da seção homogeneizada de uma viga intermediária é, em centímetros quadrados,
Provas
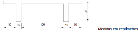
Em uma edificação prevê-se a construção de uma laje suportada por duas vigas de concreto armado de seção T, compondo duas nervuras distanciadas de 1 m, como ilustrado abaixo.

Se o esquema estrutural for o de viga simplesmente apoiada com vão de 6 m, a largura colaborante a ser utilizada no dimensionamento das armaduras das vigas é, em cm,
Provas
- Gerenciamento, Planejamento e Controle de Obras
- Orçamento no Planejamento e Controle de Obras na Engenharia Civil
Um engenheiro necessitou escorar uma vala com 10 m de comprimento e 2 m de altura. Com base na composição analítica de custo unitário abaixo, o engenheiro preparou um orçamento.

Ao verificar o custo do metro quadrado da composição, o engenheiro resolveu diminui-lo, substituindo a prancha de madeira cedrinho por prancha de madeira pinus, com valor de R$ 55,20/m2. A redução obtida do metro quadrado da composição foi, em %, igual a
Provas
Considere o cronograma PERT-CPM de uma obra de engenharia civil representado na figura abaixo, onde as datas são dadas em dias.

Para otimizar o estoque dos materiais, o engenheiro responsável utilizou toda a folga possível no caminho das atividades A, D e J, que, em dias, totaliza
Provas
Provas
Provas
Provas
Provas
Provas
Caderno Container