Magna Concursos

Foram encontradas 959 questões.

2650396 Ano: 2022
Disciplina: Arquitetura
Banca: FUMARC
Orgão: TRT-3

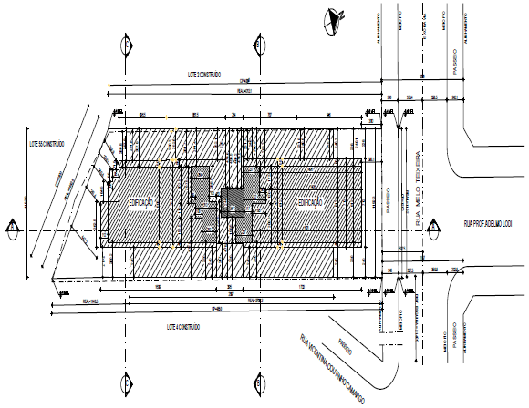
Enunciado 3570771-1

O desenho acima se refere a um projeto de instalações:

 

Provas

Questão presente nas seguintes provas
2650395 Ano: 2022
Disciplina: Arquitetura
Banca: FUMARC
Orgão: TRT-3

INSTRUÇÃO: Observe atentamente o desenho abaixo, antes de responder à questão.

Enunciado 2907270-1

No âmbito do Projeto Arquitetônico, a função do desenho acima é indicar

 

Provas

Questão presente nas seguintes provas
2650394 Ano: 2022
Disciplina: Arquitetura
Banca: FUMARC
Orgão: TRT-3

INSTRUÇÃO: Observe atentamente o desenho abaixo, antes de responder à questão.

Enunciado 2907269-1

O desenho acima representa uma Planta de:

 

Provas

Questão presente nas seguintes provas
2650393 Ano: 2022
Disciplina: Arquitetura
Banca: FUMARC
Orgão: TRT-3

Nas quadras em que a maioria dos imóveis ainda mantinha suas características originais, o critério utilizado foi de proteger o conjunto, através de suas fachadas e telhados [...]. Na eventualidade de já existirem imóveis totalmente descaracterizados ou lotes vazios [...] seriam permitidas novas construções desde que sua altura não ultrapassasse a média existente (10,5 m) e que seu projeto se integrasse ao conjunto edificado. [...] alguns imóveis [...] já estavam em processo de descaracterização, mas ainda apresentavam elementos que permitiam sua recomposição. Nesses casos, eles seriam obrigados a manter as características originais da edificação, adotando, entretanto, uma linguagem contemporânea nos elementos recuperados [...].”

[PINHEIRO, A. I. de Freitas. In: Anais do II SEDUR, 1986]

Em vista do texto acima, é CORRETO afirmar que as novas edificações:

 

Provas

Questão presente nas seguintes provas
2650392 Ano: 2022
Disciplina: Arquitetura
Banca: FUMARC
Orgão: TRT-3

Nas quadras em que a maioria dos imóveis ainda mantinha suas características originais, o critério utilizado foi de proteger o conjunto, através de suas fachadas e telhados [...]. Na eventualidade de já existirem imóveis totalmente descaracterizados ou lotes vazios [...] seriam permitidas novas construções desde que sua altura não ultrapassasse a média existente (10,5 m) e que seu projeto se integrasse ao conjunto edificado. [...] alguns imóveis [...] já estavam em processo de descaracterização, mas ainda apresentavam elementos que permitiam sua recomposição. Nesses casos, eles seriam obrigados a manter as características originais da edificação, adotando, entretanto, uma linguagem contemporânea nos elementos recuperados [...].”

[PINHEIRO, A. I. de Freitas. In: Anais do II SEDUR, 1986]

O texto acima se refere a um instrumento de:

 

Provas

Questão presente nas seguintes provas
2650391 Ano: 2022
Disciplina: Arquitetura
Banca: FUMARC
Orgão: TRT-3
Uma casa com 257,00 m2 de área construída está implantada em um terreno urbano de geometria regular, com dimensões de 15 m na testada e 30 m de profundidade. A legislação urbana permite no local um coeficiente de aproveitamento igual a 1,2. Considerando isso, em uma eventual reforma, o acréscimo de área, segundo a lei, NÃO poderá ultrapassar os:
 

Provas

Questão presente nas seguintes provas
2650390 Ano: 2022
Disciplina: Arquitetura
Banca: FUMARC
Orgão: TRT-3
São características da construção industrializada, EXCETO:
 

Provas

Questão presente nas seguintes provas
2650389 Ano: 2022
Disciplina: Arquitetura
Banca: FUMARC
Orgão: TRT-3
“A partir de experimentos e reflexões que se desenvolveram ao longo de séculos, hoje temos conceitos definidos sobre como e o que preservar, conservar e restaurar. Tomando como princípio o respeito à forma original a diversidade das manifestações culturais. As ideias evoluem e a definições são abrangentes.” Neste sentido, é incorreto afirmar:
 

Provas

Questão presente nas seguintes provas
2650388 Ano: 2022
Disciplina: Arquitetura
Banca: FUMARC
Orgão: TRT-3
Com relação às fissuras e suas várias causas de formação nos edifícios, considerando alguns desenhos a as afirmações abaixo, NÃO é correto afirmar:
 

Provas

Questão presente nas seguintes provas
2650387 Ano: 2022
Disciplina: Arquitetura
Banca: FUMARC
Orgão: TRT-3

O esquema abaixo identifica, em corte, uma solução estrutural e representa:

Enunciado 3570762-1

 

Provas

Questão presente nas seguintes provas