Foram encontradas 630 questões.
Arquivos de referência externa ou External Reference (Xref) é um recurso do programa AutoCAD que possibilita que se use o desenho de um arquivo para desenvolver o projeto sem ter que carregar o arquivo base, evitando-se aumentar o seu tamanho. Considere as seguintes características das referências externas a partir AutoCAD 2018:
I. Ao associar uma referência externa a um desenho, o caminho (path) padrão é ajustado para Full path e não para Relative path. Isso poderá ser alterado depois.
II. É possível associar um path como Relative para um arquivo, mas para isso o arquivo que o hospeda não pode estar como unnamed.
III. Ao selecionar a paleta External References, a coluna Saved Path exibe o full path com um prefixo de asterisco, significando que path será alterado ao salvar o arquivo.
IV. A opção Select New Path oferecida ao selecionar o arquivo de referência permite selecionar uma nova localização para os arquivos com o caminho perdido.
Está correto o que se afirma em
Provas
O primeiro elemento estrutural a receber cargas é a laje. Como a laje é uma superfície, a carga que normalmente atua sobre ela se distribui por toda sua área. Considerando essas noções e as seguintes características de uma laje de concreto armado para uso de escritórios:
- dimensões em planta = 5 m x 4 m
- altura h = 12 cm
- peso específico do concreto armado: CA = 2.500 kgf/m3
- carga acidental CA = 200 kgf/m2
- revestimento do piso r = 100 kgf/m2
O total das cargas que incidem nesta laje são:
Provas
A fundação profunda transmite a carga da superestrutura através do seu corpo, usando o atrito entre ela e o solo e a resistência na sua ponta. Em relação aos critérios para a escolha e às características técnicas da opção Estaca Hélice Contínua:
Provas
Com uma pequena série de seis sistemas estruturais básicos compostos por barras podem ser criadas, com adequadas associações, uma quantidade quase infinita de possibilidades estruturais, de maneira análoga às sete notas musicais. Em relação ao comportamento desses sistemas estruturais básicos,
Provas
A terminologia das peças que compõe os elementos de um telhado é muito diversa nas várias regiões do Brasil. Para não se fazer confusão de nomes, é comum dividir o assunto entre “terminologia dos construtores” – que serve para comunicação com o pessoal das obras –, e “terminologia estrutural”, adotada na comunicação entre engenheiros.
Considere a imagem abaixo sobre a terminologia dos construtores.

Considere:
I. 1 a 5 − Trama: é o conjunto formado pelas ripas, caibros e terças, que servem de lastro ao material da cobertura.
II. 7 − Chapuz: pedaço de madeira, geralmente de forma triangular, pregada na asna da tesoura, destinado a apoiar a terça.
III. 9 − Linha, rochante, tirante, tensor ou olivel.
IV. 11 − Frechal.
Está correto o que se afirma APENAS em
Provas
O interesse pelo conceito de Tipo, repensado como a essência da arquitetura, é um dos aspectos da pesquisa pós-moderna mais geral acerca do significado, pois estabelece uma continuidade com a história – cada vez mais entendida como necessária para a legibilidade da arquitetura no interior da cultura. Considere a seguinte definição de Quatremère de Quincy, um dos maiores teóricos da arquitetura:
A palavra tipo não representa tanto a imagem de uma coisa a ser copiada ou imitada perfeitamente quanto a ideia de um elemento que deve, ele mesmo, servir de regra ao modelo.
Sobre os conceitos de Tipo e Modelo:
Provas
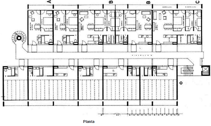
Considere os desenhos dos Apartamentos Al Rabissale (1970-74) em Misuno, Suiça, projeto do arquiteto Luigi Snozzi.




Em relação aos princípios e características dessa arquitetura,
Provas
Considere a seguinte afirmação de Maurice Merleau-Ponty (1908-61), importante filósofo fenomenólogo francês:
“A ciência manipula as coisas e renuncia habitá-las. Estabelece modelos internos delas e, operando sobre esses índices ou variáveis as transformações permitidas por sua definição, só de longe em longe se confronta com o mundo real.”
Sobre o conceito de Lugar, intimamente ligado à adoção de uma fenomenologia da arquitetura, constata-se que:
I. Lugar é um fenômeno qualitativo total, que não pode se reduzir a nenhuma de suas propriedades, como as relações espaciais, sem que se perca de vista sua natureza concreta.
II. Sendo totalidades qualitativas de natureza complexa, os lugares não podem ser definidos por meio de conceitos analíticos, “científicos”.
III. A fenomenologia foi concebida como um “retorno às coisas” em oposição às abstrações e construções mentais.
IV. Enquanto “espaço” indica a organização tridimensional dos elementos que formam um lugar, o “caráter” denota a “atmosfera” geral que é a propriedade mais abrangente de um lugar.
Está correto o que se afirma em
Provas
Considere a seguir os desenhos e as imagens da Biblioteca Central de Seattle (2004), Estados Unidos, do arquiteto Rem Koolhaas (OMA/LMN).













Em relação aos princípios dessa arquitetura, considere:
I. Intercalam-se, na vertical, camadas de vazios “vibrantes” – praças da multidão – e espaços da clausura – como nas câmaras escuras e nos corredores de “hieróglifos” silenciosos das pirâmides.
II. Uma sequência de escadas rolantes na vertical garante uma passagem tênue e fluida entre camadas, favorecendo o entrelaçamento entre elas. Uma espiral de vários andares, abrigando o acervo da biblioteca, complementa o papel das escadas rolantes.
III. A presença das escadas rolantes articulando diretamente as três praças, além da espiral dos livros, facilita e acentua a circulação na vertical, o que favorece as trocas entre os ambientes, dinamizando-os.
IV. A superposição dos andares no típico high rise − arranha-céu − americano é mais sensível (a geometria fornece sombra e luz natural, onde desejável) do que contextual (cada lado reage de maneira diferente às condições urbanas específicas) ou icônico.
Está correto o que se afirma em
Provas
Considere a seguir os desenhos e as imagens do Conjunto para Moradia Estudantil da Unifesp em Osasco (2015), SP, projeto do escritório H+F Arquitetos.









Em relação aos princípios e características dessa arquitetura,
Provas
Caderno Container