Foram encontradas 25.256 questões.
A aplicação de relações de testada e fundo de lotes em terrenos planos, com declividade pequena e
homogênea de 1:1, 1:2, 1:3 e 1:5, terá diferentes aproveitamentos no desenho de loteamentos. A alternativa
correta, quanto à relação nas dimensões de lotes, é
Provas
Questão presente nas seguintes provas
A confluência entre sinalização, wayfinding em inglês (encontrando caminhos, em tradução livre), e
acessibilidade universal (alinhada com a norma 9050/2022) leva à necessidade de integrar orientações para
rotas de saída, localização de banheiros e elevadores, entre outros. A alternativa que associa corretamente
uma qualidade de projeto com sua aplicação em edifícios públicos é
Provas
Questão presente nas seguintes provas
A compatibilização do sistema viário de projetos urbanísticos de loteamentos urbanos e o sistema viário
urbano demandam uma adequação de desenho das vias internas com o entorno. Para tal, utiliza-se a
classificação funcional de vias conforme uma hierarquia. Neste sentido, é correto afirmar que
Provas
Questão presente nas seguintes provas
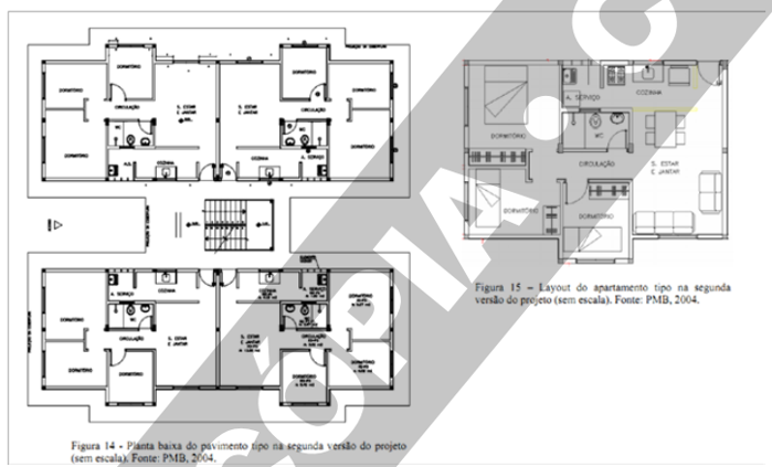
A adoção de plantas baixas em “H” em projetos de habitação de interesse social, conforme pode ser
observado na figura, tem vantagens em termos de conforto ambiental, funcionalidade e custos.
Considerando a imagem abaixo, a alternativa que define corretamente uma vantagem desta opção projetual
é


Provas
Questão presente nas seguintes provas
O controle da densidade de construção nos bairros, estabelecido pela legislação urbanística, é alcançado
pela aplicação de índices urbanísticos. Essa aplicação ocorre com o estabelecimento de um coeficiente de
aproveitamento máximo estabelecido por lote. Considerando o lote de 400m2 e coeficiente de
aproveitamento igual a 2, a alternativa correta, quanto ao porte do edifício que poderá ser construído no lote,
é
Provas
Questão presente nas seguintes provas
O material de construção encontrado em edificações históricas que tem suas características físicas e
químicas relacionadas ao que é denominado “biscoito” e “vidrado” é
Provas
Questão presente nas seguintes provas
Segundo a NBR 9050/2020, as informações e sinalizações essenciais aos espaços nas edificações, no
mobiliário e nos equipamentos urbanos, devem ser utilizadas de forma visual, sonora ou tátil, de acordo com
o princípio dos dois sentidos. Em se tratando de suas instalações, é correto afirmar que
Provas
Questão presente nas seguintes provas
Os parâmetros visuais previstos na NBR 9050/2020 variam conforme ângulos definidos conforme planos
visuais para pessoa em pé e sentada. Considerando que o cone visual é definido com acréscimos de 8º, a
alternativa correta, quanto à variação entre pessoas em pé e pessoas sentadas, é
Provas
Questão presente nas seguintes provas
Constitui, conforme a NBR 9050/2020, parâmetro para diferentes dimensões referenciais para alcance
manual lateral de cadeirante, uma vez que em função dos ângulos de elevação do braço,
Provas
Questão presente nas seguintes provas
Revestimentos cerâmicos (para pisos, paredes e outras aplicações) têm como um de seus indicadores
de resistência mecânica e à abrasividade o índice PEI (sigla de Porcelain Enamel Institute). Sobre o PEI 5,
é correto afirmar que
Provas
Questão presente nas seguintes provas
Cadernos
Caderno Container