Foram encontradas 208 questões.
Dois recipientes, A e B, totalmente cheios, continham,
juntos, 508 mililitros de certo líquido. Foram utilizados 4/5 do líquido contido em A e 5/6 do líquido contido em B, e
a quantidade de líquido restante nos dois recipientes,
juntos, ficou igual a 92 mililitros. Desse modo, é correto
afirmar que a capacidade total, em litros, do recipiente
A é igual a
Provas
Questão presente nas seguintes provas
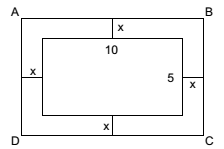
Em um jardim, um canteiro retangular, cujos lados medem 10 m e 5 m, é totalmente rodeado por uma região gramada de largura constante, indicada por x na figura.

Se a área da região gramada é igual a 76 m², então a medida indicada por x é, em metros, igual a
Provas
Questão presente nas seguintes provas
Para imprimir 300 apostilas destinadas a um curso, uma máquina de fotocópias precisa trabalhar 5 horas por dia
durante 4 dias. Por motivos administrativos, será necessário
imprimir 360 apostilas em apenas 3 dias. O número
de horas diárias que essa máquina terá que trabalhar
para realizar a tarefa é
Provas
Questão presente nas seguintes provas
Em setembro, o salário líquido de Juliano correspondeu a 4/5 do seu salário bruto. Sabe-se que ele destinou 2/5 do
salário líquido recebido nesse mês para pagamento do
aluguel, e que poupou 2/5 do que restou. Se Juliano ficou,
ainda, com R$ 1.620,00 para outros gastos, então o seu
salário bruto do mês de setembro foi igual a
Provas
Questão presente nas seguintes provas
Uma gráfica precisa imprimir um lote de 100000 folhetos e, para isso, utiliza a máquina A, que imprime 5000
folhetos em 40 minutos. Após 3 horas e 20 minutos de
funcionamento, a máquina A quebra e o serviço restante
passa a ser feito pela máquina B, que imprime 4500 folhetos
em 48 minutos. O tempo que a máquina B levará
para imprimir o restante do lote de folhetos é
Provas
Questão presente nas seguintes provas
Em uma prova de um processo seletivo, os candidatos
podiam obter apenas um de três conceitos possíveis,
A, B ou C. O gráfico mostra a distribuição desses conceitos
entre os homens e as mulheres que realizaram essa
prova.
Em relação aos candidatos que fizeram essa prova, é correto afirmar, de acordo com os dados do gráfico, que o número
Em relação aos candidatos que fizeram essa prova, é correto afirmar, de acordo com os dados do gráfico, que o número
Provas
Questão presente nas seguintes provas
Em uma loja, o preço do produto A teve um acréscimo
de 5%, e o preço do produto B teve um desconto de
20%, com isso os dois produtos passaram a ter o mesmo
preço. Se o preço do produto A, após o acréscimo,
passou a ser de R$ 84,00, a diferença entre os preços
desses dois produtos, antes dos reajustes, era
Provas
Questão presente nas seguintes provas
Mário e Nílson têm quantias diferentes, em dinheiro.
Sabe-se que 2/5 da quantia de Mário corresponde a 1/3 da
quantia de Nílson. Desse modo, é correto afirmar que a
quantia total de Mário corresponde, da quantia total de
Nílson, a
Provas
Questão presente nas seguintes provas
Para uma recepção, Letícia comprou 30 garrafas de vinho, sendo n garrafas iguais do vinho Z e 1,5 n garrafas
iguais do vinho W. Sabe-se que o preço unitário do vinho
Z superou o preço unitário do vinho W em R$ 20,00, e
que o preço médio das 30 unidades compradas foi igual
a R$ 68,00. Desse modo, é correto afirmar que cada
garrafa do vinho Z custou
Provas
Questão presente nas seguintes provas
O Fundo XWV possui dois portfólios: (1) e (2); ambos possuem 3 ativos, com as proporções e medidas de risco não diversificável (betas), conforme a tabela a seguir.

Assinale a alternativa correta.
Provas
Questão presente nas seguintes provas
Cadernos
Caderno Container