Foram encontradas 28 questões.
No Microsoft Word 2010 ao pressionar ALT + A
o que ocorre:
Provas
Questão presente nas seguintes provas
Em relação ao comando Mesclar e Centralizar no
Microsoft Excel 2010 em duas ou mais células é
correto afirmar:
Provas
Questão presente nas seguintes provas
Foi um período da História do Brasil em que houve
cassação de direitos políticos de opositores ao regime;
repressão aos movimentos sociais e manifestações
políticas de oposição; censura aos meios de
comunicação; censura aos artistas; aproximação dos
Estados Unidos; controle dos sindicatos; e
implantação do bipartidarismo.
O texto refere-se as características do(s)
O texto refere-se as características do(s)
Provas
Questão presente nas seguintes provas
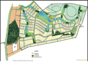
Analise as imagens abaixo e responda à questão.
Imagem 1 – Favela Sol Nascente: Ceilândia-DF

Imagem 2 – Vista aérea do Parque Flamboyant - Goiânia

Imagem 3 – Mapa de distribuição de terrenos em condomínio fechado em Goiânia

Imagem 4 – Vista aérea e parcial de Goiânia e de
Aparecida de Goiânia

Qual das imagens apresenta o fenômeno da conurbação?
Provas
Questão presente nas seguintes provas
O projeto relativo a qualquer obra de construção,
reconstrução, acréscimo e modificação de
edificação, constará, conforme a própria natureza da
obra que se vai executar, de uma série de desenhos.
A escala mais utilizada em uma Planta de situação é:
Provas
Questão presente nas seguintes provas
Um programa de TV sorteia duas casas de uma
mesma rua para a entrega de prêmios. Para tal, sabe-se
que os números das casas dessa rua são compostos
pelos dígitos 1, 2, 3, 4, 5 ou 6, e, possuem três
algarismos. Para o sorteio foram estabelecidas duas
regras: na primeira regra o número da casa sorteada
deve ser par, na segunda regra, o número da casa
sorteada deve ter três algarismos distintos. Do total de
números possíveis, quantos atendem, respectivamente,
à primeira regra e a segunda regra?
Provas
Questão presente nas seguintes provas
Analisando as carteirinhas de vacinação das 84
crianças de uma região, verificou-se que 68 receberam
a vacina BCG, 50 receberam vacina Penta/DTP e 12
não foram vacinadas. A quantidade de crianças que
receberam as duas vacinas foi igual à:
Provas
Questão presente nas seguintes provas
De acordo com o Regimento Jurídico Único da
Prefeitura de Campinorte, “Provimento é o ato
pelo qual se efetua o preenchimento do cargo
público, com a designação de seu titular”. O
provimento derivado dar-se-á por meio de:
Provas
Questão presente nas seguintes provas
Com base na Lei Orgânica Municipal, assinale
a afirmativa correta:
Provas
Questão presente nas seguintes provas
A Fórmula a seguir, com base em fatores
genéticos, descreve uma estimativa da altura de
indivíduos do sexo masculino quando forem adultos.

Com base nas informações anteriores, podemos estimar que a altura de um indivíduo cujo pai tem 1,88m de altura e a mãe 1,76m será de:

Com base nas informações anteriores, podemos estimar que a altura de um indivíduo cujo pai tem 1,88m de altura e a mãe 1,76m será de:
Provas
Questão presente nas seguintes provas
Cadernos
Caderno Container