Foram encontradas 486 questões.
Provas
Provas
Provas
Provas
Provas
A figura a seguir mostra as dimensões, em centímetros, de um prisma reto de base retangular.

Sabendo que o volume desse prisma é 240 cm3 , então o maior lado da base, indicado na figura por 3x, mede
Provas
Uma praça quadrada e um terreno retangular têm suas medidas, em metros, indicadas nas figuras a seguir.

Sabendo que o perímetro do terreno é o dobro do perímetro da praça, então o perímetro do terreno é
Provas
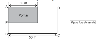
Um terreno retangular ABCD, com 50 m de comprimento, terá 40% de sua área destinada à construção de um pomar, também retangular, com 30 m de comprimento, conforme mostra a figura a seguir.

Sabendo que a área do pomar é 600 m2 , é correto afirmar
que a medida do segmento
é
Provas
Em um mesmo lado de uma avenida plana, há duas farmácias, A e B, distantes entre si 2,4 km, uma padaria P e uma livraria L, conforme mostra a figura.

Sabendo que a distância entre A e P é 4/5 da distância entre P e L, e que a distância entre L e B é 600 m, então, a distância entre P e B é
Provas
Uma empresa vende determinado tipo de peça a R$ 70,00 a unidade. O gráfico mostra o número de peças vendidas nos 3 últimos meses do ano.

Sabendo que o valor arrecadado com a venda dessas peças, nesses 3 meses, foi R$ 5.950,00, o número de peças vendidas em dezembro foi
Provas
Caderno Container